- Woonoppervlakte
- Circa 108 m²
- Perceeloppervlakte
- Circa 163 m²
- Bouwjaar
- Gebouwd in 2000
- Aantal kamers
- 3 kamers (2 slaapkamers)
Ben je op zoek naar een instapklare woning op een fijne, rustige plek met alle voorzieningen binnen handbereik? Dan is deze moderne woning in Almere Oostvaarders precies wat je zoekt. Met een energielabel A+, maar liefst 16 zonnepanelen en een zonnige tuin op het zuidwesten woon je hier niet alleen comfortabel, maar ook duurzaam.
De gestelde prijs betreft een "bieden vanaf" prijs. Ieder serieus voorstel boven de genoemde "bieden vanaf" prijs zal door verkopers in overweging worden genomen.
Voor meer informatie ga naar françoisvalentijnstraat97.nl
Begane grond
Via de voortuin kom je binnen in de nette hal met toegang tot het toilet, de meterkast en de lichte woonkamer. De woonkamer voelt ruim en prettig aan dankzij de grote raampartijen en biedt een mooi uitzicht op de zonnige achtertuin. De open keuken is praktisch ingericht en van alle gemakken voorzien, waardoor koken hier een plezier is. Vanuit de woonkamer loop je zo de achtertuin in — ideaal voor lange zomeravonden.
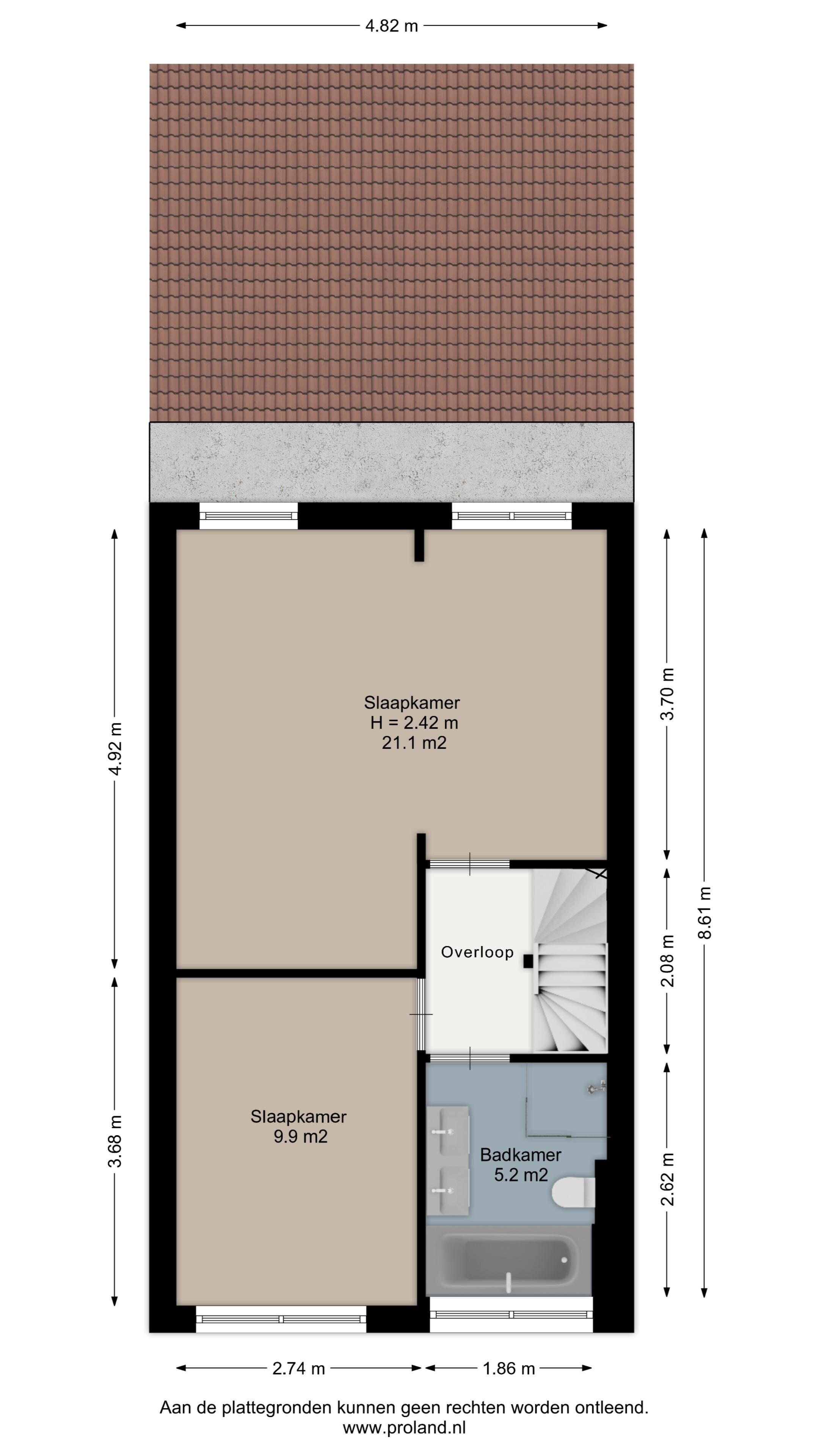
Slaapkamers en badkamer
Op de eerste verdieping bevinden zich twee ruime slaapkamers (voorheen 3 slaapkamers), beide licht en netjes afgewerkt. De badkamer is modern en voorzien van een douche, wastafel en toilet — een fijne plek om de dag te beginnen of juist ontspannen af te sluiten.
De tweede verdieping is ruim genoeg voor een derde slaapkamer.
Tuin
De woning beschikt over zowel een voor- als een achtertuin. De achtertuin ligt op het zuidwesten, wat betekent dat je hier optimaal geniet van de zon. Of je nu wilt loungen, tuinieren of gezellig wilt borrelen met vrienden, hier kan het allemaal.
Bijzonderheden:
- Parkeren op eigen terrein
- Oostvaarders
- Tuin op het zuidwesten
- CV ketel (2021)
- 16 zonnepanelen
- Energielabel A+
- Vloerverwarming beneden
Omgeving
De woning ligt in de populaire en kindvriendelijke wijk Almere Oostvaarders. Scholen, supermarkten, speelplekken en het winkelcentrum bevinden zich allemaal op korte afstand. Ook station Almere Oostvaarders ligt op slechts enkele minuten lopen of fietsen, waardoor je uitstekende verbindingen hebt richting bijvoorbeeld Amsterdam. Met de auto ben je bovendien zo op de uitvalswegen richting Amsterdam, Lelystad en ’t Gooi. Lees de volledige omschrijving
Overdracht
- Vraagprijs
- € 450.000 k.k.
- Status
- Beschikbaar
- Aanvaarding
- In overleg
Bouw
- Object type
- Eengezinswoning, tussenwoning
- Soort bouw
- Bestaande bouw
- Bouwjaar
- 2000
- Soort dak
- Dwarskap bedekt met pannen
Oppervlakte en inhoud
- Woonoppervlakte
- 108 m²
- Perceeloppervlakte
- 163 m²
- Inhoud
- 371 m³
- Externe bergruimte
- 6 m²
- Gebouwgeb. buitenruimte
- 20 m²
Indeling
- Aantal kamers
- 3 kamers (2 slaapkamers)
- Aantal badkamers
- 1 badkamer en 1 apart toilet
- Badkamervoorzieningen
- Douche, dubbele wastafel, ligbad, en toilet
- Aantal woonlagen
- 2 woonlagen
- Voorzieningen
- Glasvezelkabel, schuifpui, TV kabel, en zonnepanelen
Energie
- Energielabel
- A
- Isolatie
- Dakisolatie, dubbel glas, muurisolatie, vloerisolatie en volledig geïsoleerd
- Verwarming
- Cv-ketel en gedeeltelijke vloerverwarming
- Warm water
- Cv-ketel
- Cv ketel
- Remeha (gas gestookt combiketel uit 2021, eigendom)
Buitenruimte
- Ligging
- Aan rustige weg en in woonwijk
- Tuin
- Achtertuin en voortuin
Bergruimte
- Schuur / berging
- Vrijstaande houten berging
- Voorzieningen
- Elektra
Parkeergelegenheid
- Soort parkeergelegenheid
- Openbaar parkeren
Energieverbruik in Almere
Energielabel deze woning
Energielabel A
Publicatie energielabel:
Stroomverbruik per jaar
(Gemiddelde tussenwoning in Almere)
Gasverbruik per jaar
(Gemiddelde tussenwoning in Almere)
* Cijfers zijn afkomstig van het CBS en bedoeld als indicatie en kunnen verschillen voor deze woning
Indicatie hypotheeklasten
Eigen inleg:
Spaargeld / overwaarde
Rente:
Laagste 10-jaars rente
Laagste 10-jaars rente
2,78% - Centraal Beheer - NHG
3,04% - Centraal Beheer - 80%
Laagste 20-jaars rente
3,29% - Centraal Beheer - NHG
3,52% - Centraal Beheer - 80%
Laagste 30-jaars rente
3,41% - Centraal Beheer - NHG
3,7% - Argenta - 80%
Hypotheek:
Bruto maandlasten: € 0 p/m
Netto maandlasten: € 0 p/m
Hoe berekenen we dit?
Het rentepercentage is gebaseerd op de laagste 10 jaars vaste rente voor één hypotheekdeel. De vermelde rente (3.04% zonder NHG) is gecontroleerd op 22-04-2026. Deze berekening is gebaseerd op een annuïteitenhypotheek die volledig wordt afgelost, waarbij de maandlasten gedurende de gehele looptijd gelijk blijven. De werkelijke rente en netto maandlasten kunnen variëren, afhankelijk van uw persoonlijke situatie en de hypotheekverstrekker. Raadpleeg een financieel adviseur voor een nauwkeurige berekening en advies. Aan deze berekening kunnen geen rechten worden ontleend; het dient enkel als indicatie.
Documentatie
Kadastrale kaart
Leefomgeving
Plattegronden PDF
WOZ waarderapport
BAG uittreksel
Brochure
Bezoek onze website
Bezichtiging
Bod uitbrengen
Waardebepaling
Zoekopdracht
Alles downloaden
Zonnegrenzen bekijken
Inwoners in Almere
Cijfers voor postcodegebied 1335
- Totaal aantal inwoners
- 12380 inwoners
- Mannen
- 50%
- Vrouwen
- 50%
Inwoners in Almere
Cijfers voor postcodegebied 1335
- tot 15 jaar
- 19%
- 15 tot 25 jaar
- 16%
- 25 tot 35 jaar
- 28%
- 45 tot 65 jaar
- 31%
- 65 en ouder
- 7%
Huishoudens in Almere
Cijfers voor postcodegebied 1335
- Eenpersoons zonder kinderen
- 29%
- Meerpersoons zonder kinderen
- 21%
- Huishoudens zonder kinderen
- 50%
Huishoudens in Almere
Cijfers voor postcodegebied 1335
- Huishoudens met één kind
- 14%
- Huishoudens met meerdere kinderen
- 37%
- Huishoudens met kinderen
- 51%
Woningen in Almere
Cijfers voor postcodegebied 1335
- Woningen voor 1945
- 1%
- Woningen tussen 1945 en 1965
- 1%
- Woningen tussen 1965 en 1975
- 1%
- Woningen tussen 1975 en 1985
- 1%
- Woningen tussen 1985 en 1995
- 1%
Woningen in Almere
Cijfers voor postcodegebied 1335
- Woningen tussen 1995 en 2005
- 85%
- Woningen tussen 2005 en 2015
- 10%
- Woningen na 2015
- 5%
- Huurwoningen
- 30%
- Koopwoningen
- 70%
Overige in Almere
Cijfers voor postcodegebied 1335
- Gemiddelde WOZ waarde
- € 247.000,-
- Personen onder de 65 met uitkering
- 9%
Overige in Almere
Cijfers voor postcodegebied 1335
- Adressen per km²
- 1872
- Stedelijkheid (schaal 1 op 5)
- 80%
Korte feiten over Almere
Almere is een stad en gemeente in de Nederlandse provincie Flevoland, in de polder Zuidelijk Flevoland. De gemeente telt 223.183 inwoners en heeft een totale oppervlakte van 248,77 km², waarvan 129,19 km² land en 119,58 km² water (31 januari 2023, Bron: CBS).
Honig & Huis Makelaardij
Indien u vragen heeft of u wilt een bezichtiging inplannen, dan kunt u gebruik maken van het formulier hiernaast. Er zal daarna op korte termijn contact met u worden opgenomen.
Contact opnemen
Honig & Huis Makelaardij
Honig & Huis is uw betrokken makelaar in Flevoland, gespecialiseerd in verkoop, aankoop en taxaties.
Bij Honig & Huis realiseren we ons het belang van een deskundige partner die u begeleidt door het gehele traject en aandachtig naar uw wensen luistert. Wij besteden zorgvuldig tijd aan het doorgronden van uw behoeften en zetten ons volledig in om optimale resultaten voor u te realiseren.
Gratis waardebepaling
Benieuwd naar de waarde van je huis in de huidige woningmarkt in Lelystad en omgeving? Overweeg je jouw woning te verkopen en wil je graag alle mogelijkheden bespreken? Dan ben je bij ons aan het juiste adres! Wij bieden een gratis waardebepaling van jouw woning, zodat je een goed inzicht krijgt in de actuele marktwaarde. Mocht je dan eventueel geïnteresseerd bent in het verkopen van je woning, dan nemen we samen de verkoopmogelijkheden door. Neem contact met ons op voor meer informatie.
Nieuwste reviews
-
Veerkade 118
Nicoline is heel voorkomend en attent. Zij komt alle afspraken goed na en is ook zeer goed bereikbaar. De contacten die wij hadden, waren he...
-
Groote Noord 2
Nicoline Honig is altijd bereikbaar, snel in haar acties en heeft ons fantastisch begeleid bij de verkoop van onze woning. Ik zou haar bij i...
-
Gerrit van Heemskerkstraat 1
Zeer communicatief, je goed op de hoogte gehouden.Geeft goede adviezen.11 bezichtigen en 6 biedingen, dus een geslaagde verkoop.